Atelier apartment for Studio Ránki
(2018-2021, built)

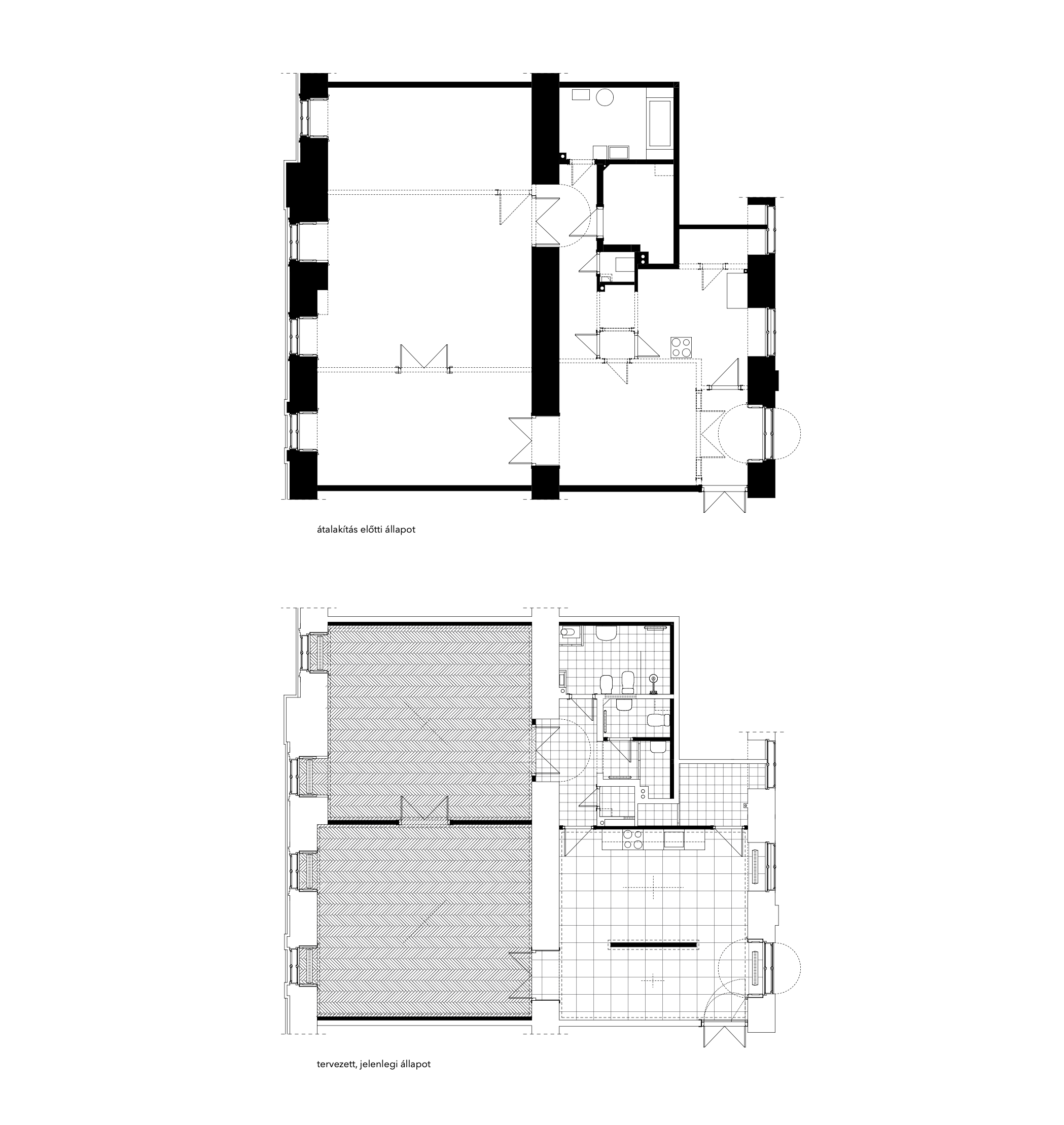
Atelier in a registered heritage building designed by József Hild (1844-1845).

architects: Soma Ránki, András Weiszkopf DLA
images: Balázs Danyi
historical expert: Zoltán Galina
restoration expert’s report: László Schrett
service engineering: Tamás Oltvai
structural engineering: Gábor Sugár
general contractor: Végtelen Megoldás Kft.

publications:
OCTOGON 2022/1 by Anna Zöldi
DIVISARE January 29, 2024

Previous
Previous

Memorial Competition (2023)

Next
Next

Sports Centre (2014, built)